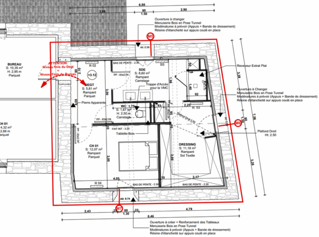
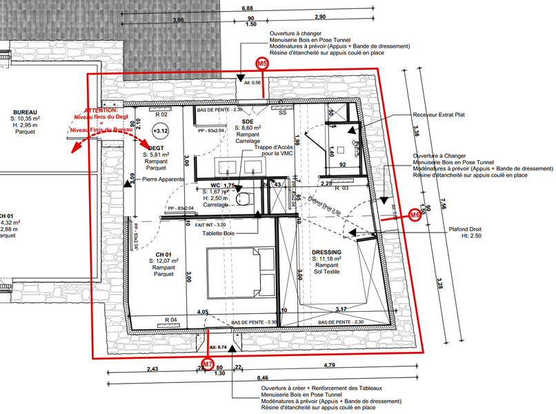
Rénovation d'une ancienne longère à Beaufou
Rénovation partielle d’une longère ancienne d’une surface de 254 m² (R+1).
Description du projet :
- Une suite parentale (chambre, dressing et salle d’eau)
- Un local buanderie
- Un local technique
- Une piscine extérieure
- Aménagements extérieurs : béton poreux et terrasse en bois exotique
- Réalisation d’un assainissement autonome
- Installation d’un jacuzzi
- Modification des ouvertures extérieures
- Piquage et réfection des enduits à la chaux sur maçonnerie en pierre


























