Pool house en bois à Aizenay

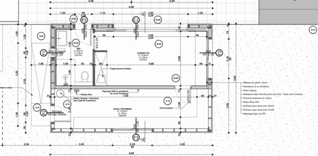
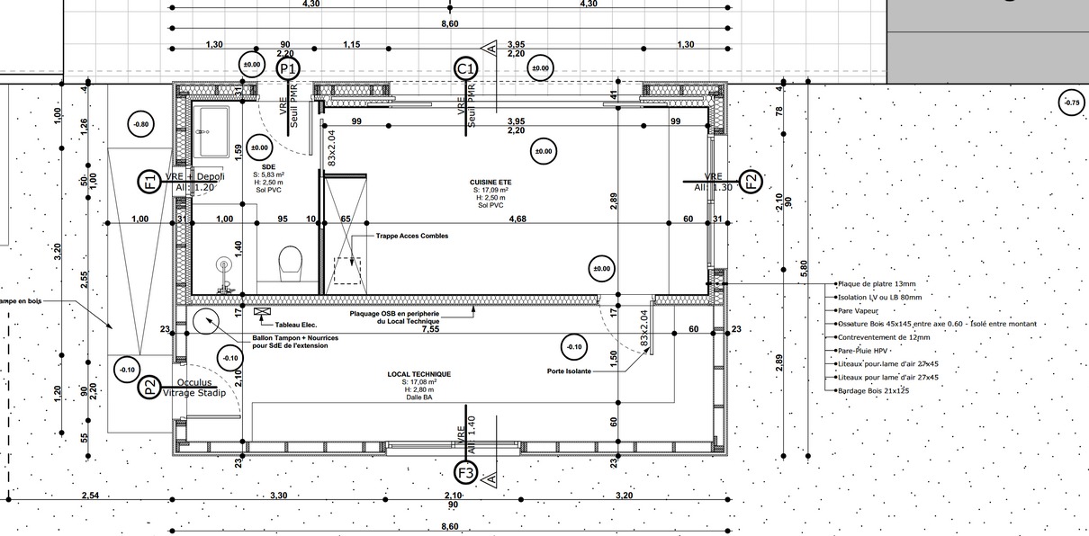
Réalisation d’un pool house en ossature bois d’une surface de 40 m² habitables.

Nombre de m²

40 m²

Description du projet :

  • Une salle d’eau

  • Une cuisine d’été

  • Un local technique

Retour en haut