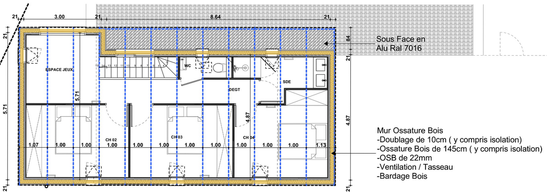
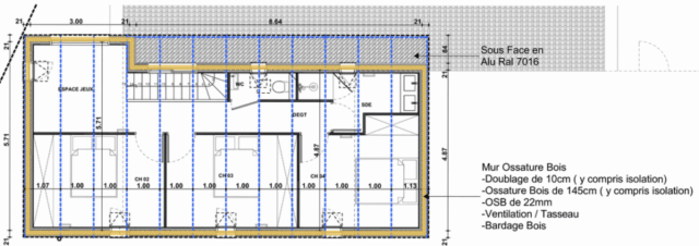
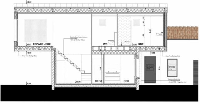
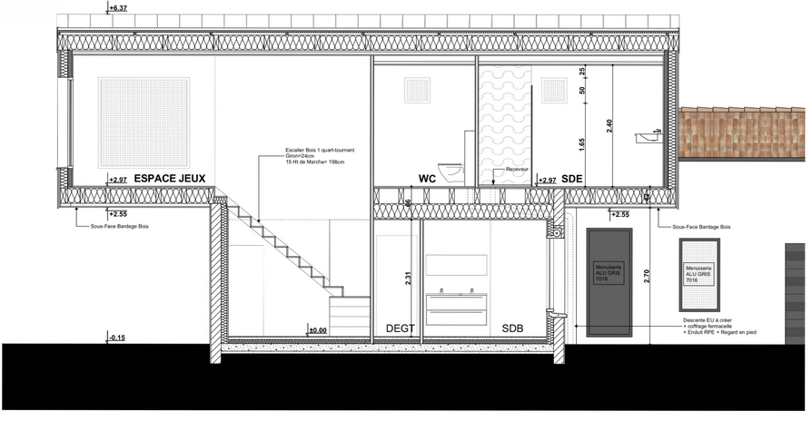
Surélévation en bois à Aizenay Réalisation d’une surélévation en ossature bois d’une surface de 52 m² habitables. Nombre de m² 52 m² Description du projet : Création d’un espace jeuxTrois chambresUn WCUne salle d’eau